費用・相場・ローン
50坪の注文住宅の建築費用相場は?注文住宅実例や価格を抑えて建てるコツも
更新:2026.05.14 公開:2026.02.25
家を建てるにあたって家族が快適に暮らすために重要な広さが欲しいけれど
「50坪の注文住宅は広さがある分建築費用が高そう」
「平均相場を知っておきたい」
このような疑問を抱えている人は多いのではないでしょうか?
この記事では、50坪の注文住宅の建築費用相場を徹底解説!あわせて、50坪の注文住宅実例や価格を押さえて建てるコツも紹介しますので、ぜひ参考にしてみてくださいね。
50坪の広さは?
延べ床面積が50坪(約165平方メートル)あると、平均的な注文住宅(約37坪)よりも3割ほど広めで、ゆったりとした間取りにできます。

5~6人家族でもスペースに余裕を持って暮らせるうえに、4LDK~5LDKの間取りにすることも十分可能。またリビングや寝室を広くしたり、書斎や和室、趣味の部屋、ファミリークローゼットなどを追加したりもできます。
二世帯住宅を考えている人にも、この広さはおすすめです。
例えば、1階を親世帯、2階を子世帯にする「一部共有型」なら、玄関や浴室は一緒でも、お互いのプライベートはきちんと守れます。また、完全に分けたいなら、キッチンやお風呂などの位置を工夫したり、収納を増やしたりすることで無理なくスペースを分けられるでしょう。
50坪の注文住宅の建築価格相場

建築費の相場は1坪あたり70万~100万円程度なので、50坪なら3,500万~5,000万円程度になります。
ただし、古い家の解体費用が発生したり、土地の改良・庭や駐車場などの工事・登記費用・設計料がかかったりする可能性もあるので全部で4,000万~5,500万円程度を見ておくと安心でしょう。
価格を押さえて50坪の注文住宅を建てるコツ

ここからは、50坪の家をお得に建てるためのポイントをいくつかご紹介します。
ローコスト住宅・規格住宅を活用する
建築費用を抑えたいなら、ローコスト住宅か規格住宅を検討しても良いでしょう。
ローコスト住宅とは、建築費用をできるだけ抑えて建てられる住宅のこと。一般的には、建築坪単価が40万円前後、または総工費が2,000万円以内の住宅を指します。坪単価は70万円程度から建てられることも珍しくありません。工事期間も短くて済むので、予算を抑えたい人にはおすすめです。
一方、規格住宅とは、間取りやデザインが決まっている住宅のこと。注文住宅ほど自由にできませんが、設計料や打ち合わせの手間が省ける上、品質が安定しています。
どちらの住宅を選ぶにしても「自分にとって本当に必要なものは何か」を考えることが大切です。
例えば、内装や外観のデザインに強いこだわりがある方にとってはローコスト住宅では満足できない部分もあるかもしれません。しかし、断熱性や耐震性といった住まいの基本性能を重視する方にとっては、費用を抑えながらも満足度の高い家づくりができるローコスト住宅は満足度が高いですね。
補助金・住宅ローン減税・贈与税の非課税枠を使用する
国や自治体の制度を使うと、かなり費用を抑えられます。
例えば「子育てエコホーム支援事業」などの制度を活用し、高い省エネ性能(長期優良住宅など)を満たすことで、最大100万円の補助金を受けられる可能性があります。住宅ローン減税も大きく、ローンの残高に応じて13年間も税金が安くなります。
ほかにも、親や祖父母から住宅資金をもらう場合「住宅取得等資金贈与の非課税特例」を使えば、最大1,000万円までは税金がかかりません。
ただし、これらの制度は毎年内容が変わるので、常に新しい情報をチェックすることが大切です。
3階建てを検討している場合は木造にする
都市部などで土地が狭い場合、延床面積50坪を確保する目的で3階建て住宅を選ぶケースも見られます。
ただし3階建ての場合、構造によって2階建てよりも費用が大きく変わります。例えば鉄骨造やRC造は頑丈ですが、工事費が高く坪単価が100万円を超えることも。
一方、木造3階建てなら、鉄骨造やRC造と比較して、坪単価を10〜20万円ほど抑えつつ、高い耐震性や断熱性を確保することが可能です。
最近では木造でも耐震等級3を取得できる強い構造や省エネ基準を満たした設計もできますので、価格を抑えたいのであれば選択肢に入れてみても良いでしょう。
土地代を抑えられる4階建てを検討する
都市部で土地が高い場所では、思い切って階数を増やして延床面積を広げるのも一つの手です。例えば、4階建ての住宅なら、狭い土地でも延床50坪を実現でき、土地代をぐっと抑えられます。
また、店舗や賃貸スペースを併設すれば家賃収入をローンの返済に充てることも可能ですよ。ただし、4階建て以上の建物は、構造上の制約が多く、建築確認申請や耐火構造の要件も厳しくなります。
4階建て以上の建物になると、耐火構造や避難経路などに関する法的基準が一気に厳しくなるため、設計や申請の手間・コストが増える点には注意が必要です。
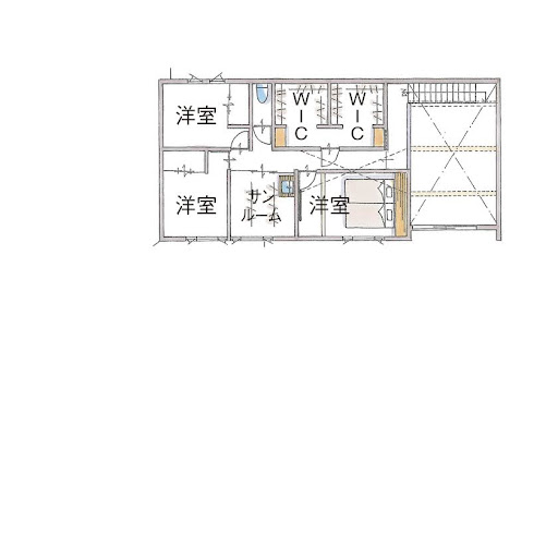
50坪の注文住宅実例
50坪ほどの注文住宅なら、家族4人が広々と暮らせて動きやすい間取りや十分な収納も作りやすいのが良いところです。
ここでは、延べ床面積が54.61坪の4LDK、2階建ての家を例に紹介します。間取りや設備・おおよその予算など家を建てる時の参考になる情報が満載です。家づくりを考える際に役立ててください。
54.61坪・4LDK・2階建て


この住宅の特徴は、屋根をくり抜いた中庭からやわらかい光が部屋の中に差し込むことです。50坪あると、ガレージや作業室などの趣味のスペースも、きちんと確保することができますね。
キッチンは、モールテックス仕上げの腰壁と、天然木でつくったオーダーキッチンがポイント。手元が見えないように少し壁を高くすることで、生活感が出すぎず美しい空間になっています。
ランドリールーム・パントリー・脱衣室をまとめて、家事のしやすい動線になっているため、デザイン性に優れているだけでなく、年配の方でも生活しやすいですね。
50坪の家で後悔しないためのポイント

「広い家=快適な家」とは限りません。実際に建てた方の中には、「家事動線がイマイチ」「収納が足りない」「光熱費がかさむ」など、住んでみて初めて不満に気づくケースも多くあります。
ここでは、50坪の家づくりで失敗しないために、ぜひ知っておきたい大切なポイントを4つご紹介します。
動線を考慮する
家の広さと暮らしやすさは、家事や移動のしやすさ、つまり「動線」で大きく変わります。
動線が悪いと、掃除や洗濯などの負担が増え、日々のストレスにつながることも少なくありません。
例えば洗濯の動線を短くするなら、洗濯機・物干し・片付けの場所を同じ階にまとめるとスムーズです。
また、玄関からリビングを通って部屋へ行くようにすると、自然と家族のコミュニケーションを増やすこともできます。
50坪の家は広く間取りの選択肢が多い分、動線をしっかり考えないと、移動が大変になることも。間取りを決める際は、家事や生活の動きを想像しながら、動きやすい配置を考えるといいでしょう。
きちんと収納計画を立てる
広い家でも、収納が少ないとすぐに物があふれてしまいます。しかし、後から収納家具を買い足すと、せっかくの広い空間が狭くなってしまうことも。
そのため、家を建てる前に家族の物をリストアップして、どこに収納するかを決めておくことをおすすめします。特に玄関やリビングは人に見られることも多いので、スッキリ見せるためにも、寝室や廊下などに十分な収納を確保したいですね。
洋服が多い家ならウォークインクローゼットを、キッチン収納が必要ならパントリーのような大きな収納スペースを作っておくと、さらに安心ですよ。
省エネ性能を高める
50坪の家だと部屋数や窓が多くなることが多いため、冷暖房の効率が悪くなるケースも。そのため、家を建てる前から省エネ性能を高める方法を考えておきましょう。
例えば断熱材や窓の性能を良くすれば、外の気温に左右されにくくなり、冷暖房費をかなり節約できます。特に窓は熱が出入りしやすいので、二重サッシや樹脂サッシを選ぶのがおすすめです。
ほかにも太陽光発電や蓄電池があれば、電力会社から電気を買わなくても済みますね。初期費用はかかりますが、長い目で見ると光熱費が安くなることも多いですよ。
東京都などでは補助金が出るケースもあるので、お住まいの地域の制度を確認してみてください。
建ぺい率・固定資産税の額を考える
50坪の家を建てるなら、建ぺい率や固定資産税といった法律やお金のことも考えておきましょう。
建ぺい率というのは、土地に対してどれくらいの広さの家を建てられるかの割合のことです。都会ではこの制限が厳しいので、50坪の土地でも、思ったより広く家を建てられないこともあります。
また、家の床面積が広いほど固定資産税も高くなります。そのため家を建てるときは、建築費だけでなく、毎年の税金や維持費も全部ふくめて、お金の計画を立てることが大事です。
土地の条件や法律・条例をきちんと調べて、設計士や住宅会社にも相談してみましょう。家は「建てたら終わり」ではありません。「住み続けても安心できる家」を目指してみてくださいね。
50坪の注文住宅をお考えなら、グランハウスにご相談ください!

この記事では、50坪の注文住宅の費用相場や、建てる際のポイントなどをご紹介してきました。
50坪あればかなり広い家を建てることができますが、広いからこそ、生活動線や収納計画をきちんと考えていくことが大切です。
グランハウスは岐阜/愛知/三重で注文住宅を提供している設計士集団です。
「ハウスメーカーでも工務店でもない、設計士とつくる」からこそ、お客様の想いやこだわりに丁寧に向き合い、ちょっとカッコいい、暮らしやすい家をご提案します。
施工実績は1,000件以上。「より良い家づくりをしたい」「岐阜で注文住宅を建てたい」とお考えの方は、ぜひグランハウスに一度お問い合わせください。